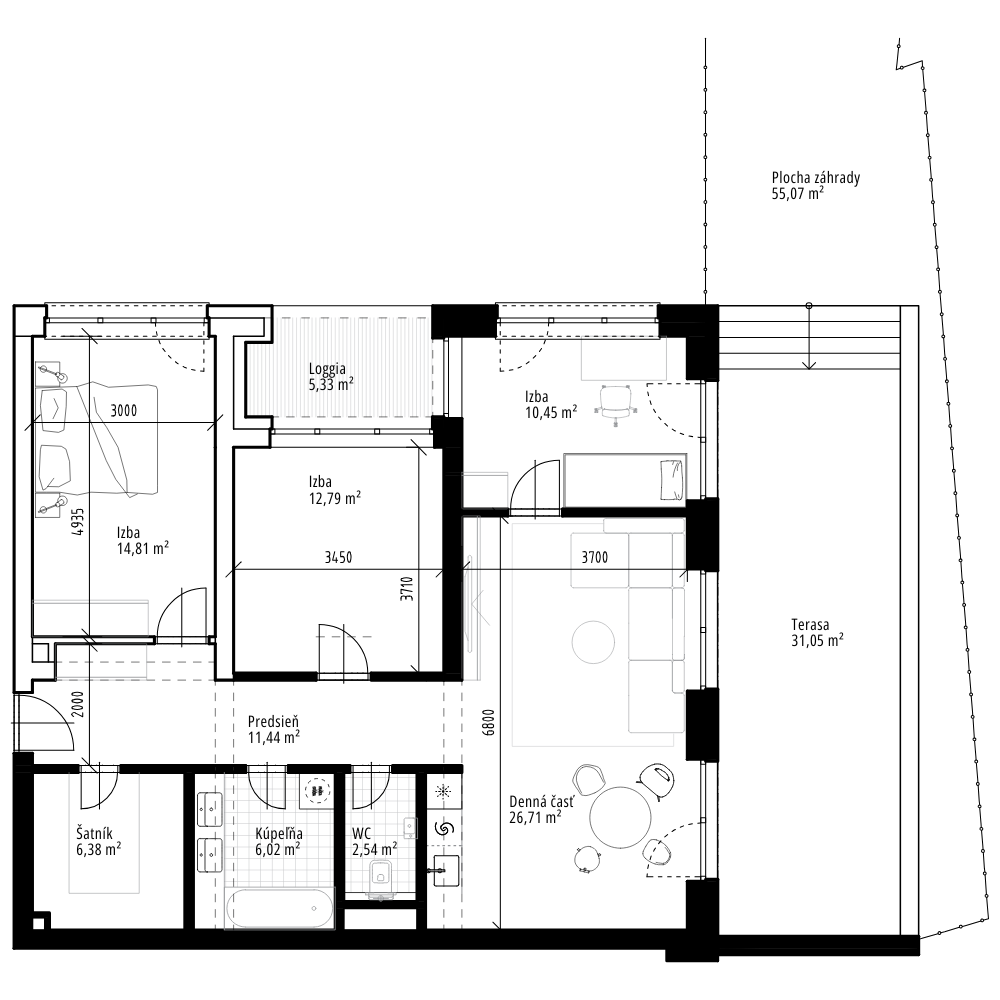
BYT 4L

182,59 m²

* Cena parkovacieho státia je 28.900,- EUR s DPH (nie je zahrnutá v cene bytu)

* Pri kúpe 2 parkovacích státí je cena druhého parkovacieho státia 19.000,- EUR s DPH

* Cena pivnice je 7.000,- EUR s DPH (nie je zahrnutá v cene bytu)

Cena s DPH

382.981 €

MÁM ZÁUJEM

    REZERVUJTE SI KONZULTÁCIU